Casa Bétula

Um Projeto que Une Culturas e Arquitetura Sustentável
casa (nome fem.):
1. Conjunto de pessoas da família ou de pessoas que habitam a mesma morada

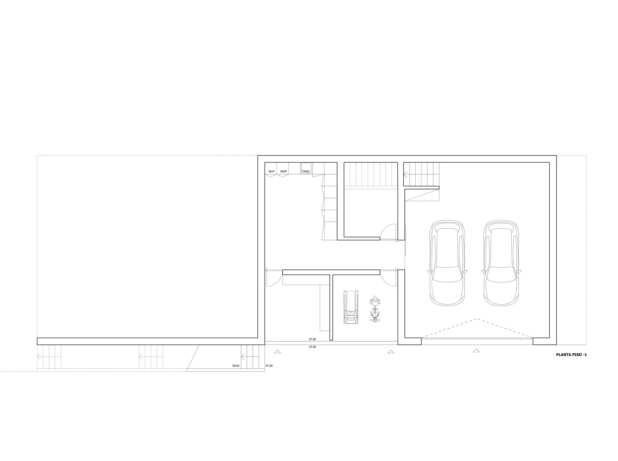
Programa: habitação unifamiliar | T3
Área de implantação: 264,43m²
Localização: Águeda, Portugal
Cliente: privado
Ano: 2022 – (em construção)
Arquitetura: CURO
Archviz: Joana Marques
Levantamento Topográfico: Topografo Fernando Pinto
Especialidades: Eng.º Luís Ferreira e Eng.º Luís Quintal

Casa Bétula

Programa: habitação unifamiliar | T3
Área de implantação: 264,43m²
Localização: Águeda, Portugal
Cliente: privado
Ano: 2022 – (em construção)
Arquitetura: CURO
Archviz: Joana Marques
Levantamento Topográfico: Topografo Fernando Pinto
Especialidades: Eng.º Luís Ferreira e Eng.º Luís Quintal

A Casa Bétula é um projeto único, concebido para atender os desejos de um casal com duas crianças. Inspirado nas suas raízes multi-culturais – portuguesa e estónia – o desenho da habitação reflete a perfeita fusão entre tradição e modernidade.

Localizada estrategicamente, a Casa Bétula foi projetada para maximizar o conforto e a eficiência energética. A fachada principal, orientada para Norte exibe um jogo harmonioso de avanços e recuos que proporcionam dinamismo à imagem exterior. Ao mesmo tempo, a orientação a Sul aproveita ao máximo a luz natural, com um grande pano de vidro que transforma o ambiente interior num espaço aberto e conectado com o exterior. Este elemento, em conjunto com a varanda, cria uma relação fluida entre o ambiente interno e a natureza circundante.