Joartes

Joartes: Arte e Inovação num Novo Espaço
indústria (nome fem.):
1. conjunto de atividades económicas que têm por fim a manipulação e exploração de matérias-primas, bem como a transformação de produtos semiacabados em bens de produção ou de consumo.
2. habilidade ou aptidão para realizar algo, esp. trabalho manual; arte, destreza, perícia.

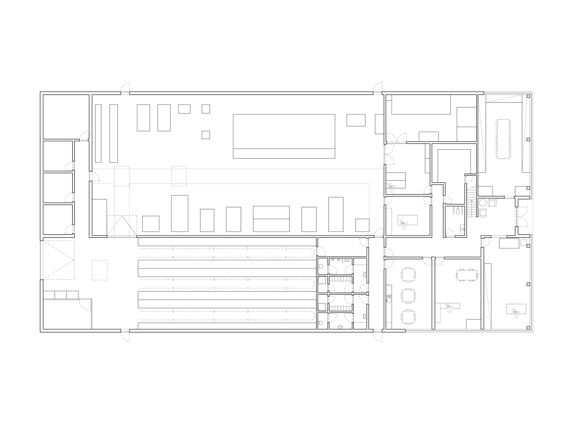
Programa: pavilhão industrial
Área de implantação: 1233,24m²
Localização: Águeda, Portugal
Cliente: privado
Ano: 2025 – (aguarda construção)
Arquitetura: CURO
Colaborador: Ricardo Martins
Archviz: Joana Marques
Levantamento Topográfico: Topografo Fernando Pêgo Felizardo
Especialidades: Eng.º Jorge Raposo, Eng.º Gabriel Silva Santos, Eng.ª Joana Marques Pereira Moura,

Joartes

Programa: pavilhão industrial
Área de implantação: 1233,24m²
Localização: Águeda, Portugal
Cliente: privado
Ano: 2025 – (aguarda construção)
Arquitetura: CURO
Colaborador: Ricardo Martins
Archviz: Joana Marques
Levantamento Topográfico: Topografo Fernando Pêgo Felizardo
Especialidades: Eng.º Jorge Raposo, Eng.º Gabriel Silva Santos, Eng.ª Joana Marques Pereira Moura,

O novo edifício da Joartes, empresa de referência no mundo das artes gráficas, abre portas a uma nova etapa da empresa com a construção de um pavilhão que reflete a sua essência criativa. Inspirado na elegância e na simplicidade da marca, este espaço foi projetado para integrar funcionalidade e estética num  design contemporâneo.

Com uma fachada minimalista e sofisticada, o novo pavilhão simboliza a identidade da Joartes: cada detalhe foi pensado para proporcionar um ambiente inspirador e eficiente, no qual a criatividade e a expressão artística se unem para dar vida a projectos marcantes.

Este é mais do que um espaço físico; é um reflexo do compromisso da Joartes em transformar ideias em realidade, sempre respeitando a harmonia entre o design e o meio ambiente. Um novo capítulo para uma história que continua a ser escrita com paixão e excelência.