Casa Lima

A Casa Lima surge na busca da sua própria identidade.
identidade (nome fem.):
1. conjunto de características de algo ou de alguém que permite a sua identificação.
2. paridade absoluta.

Programa: habitação unifamiliar | T3
Área de implementação: 197,5m²
Localização: Águeda, Portugal
Cliente: privado
Ano: 2025 –
Arquitetura: CURO
Archviz: Joana Marques

Casa Lima

Programa: habitação unifamiliar | T3
Área de implementação: 197,5m²
Localização: Águeda, Portugal
Cliente: privado
Ano: 2025 –
Arquitetura: CURO
Archviz: Joana Marques

A Casa Lima é um projeto de interiores que celebra a simplicidade sofisticada, combinando funcionalidade e estética em ambientes acolhedores e contemporâneos. O seu design interior privilegia os materiais naturais e os tons quentes, criando uma atmosfera de equilíbrio e serenidade.

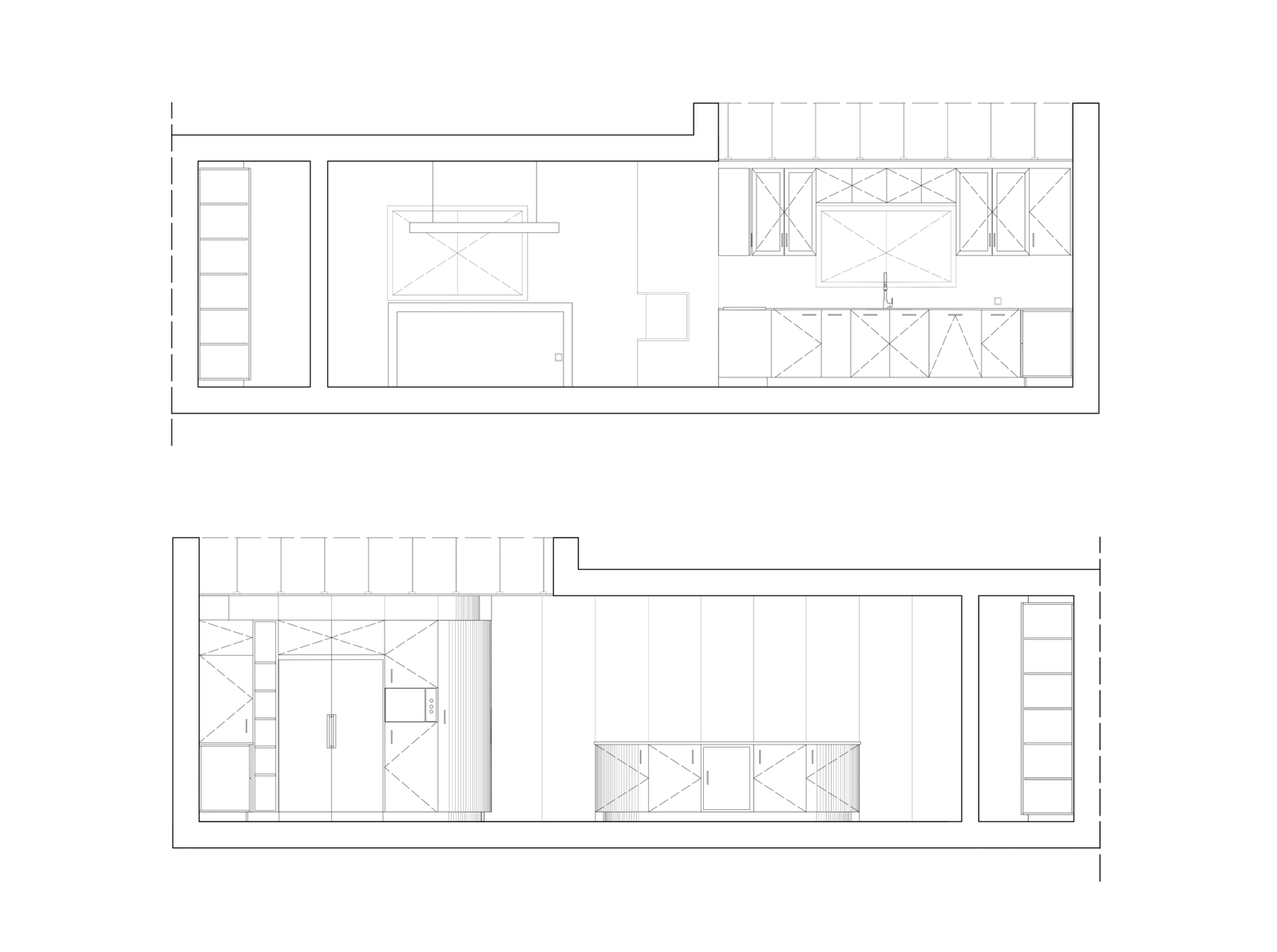
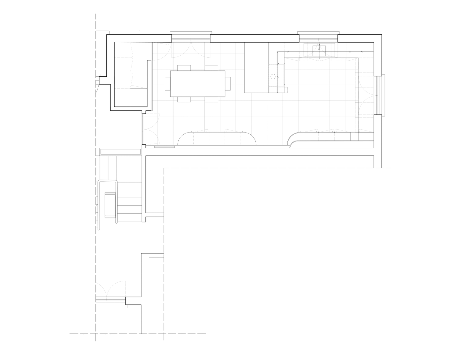
Na cozinha, o mobiliário em madeira clara e o uso de superfícies neutras reforçam a sensação de leveza, enquanto a iluminação embutida valoriza os detalhes e a amplitude do espaço. O escritório foi concebido para promover concentração e conforto, integrando soluções de arrumação discretas com uma estética moderna e minimalista, seguindo a personalidade do cliente.

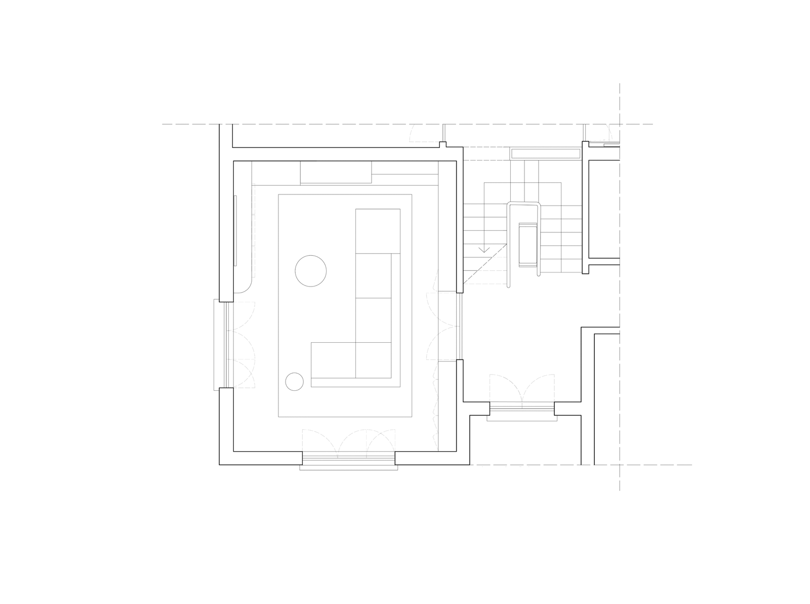
A sala de estar, marcada por estantes iluminadas e um generoso sofá em tons claros, traduz a essência do convívio. O contraste entre texturas suaves, a presença do fogo e a integração da luz natural realçam o carácter acolhedor e convidativo do ambiente.

A Casa Lima, em toda a sua extensão, revela uma linguagem coerente, que equilibra sofisticação e aconchego, reforçando o conceito de lar como refúgio contemporâneo.