Casa da Celeste

Legado (nome masc.):
1. O que é transmitido a outrem que vem a seguir;
2. Aquilo que as gerações passadas transmitem às atuais.

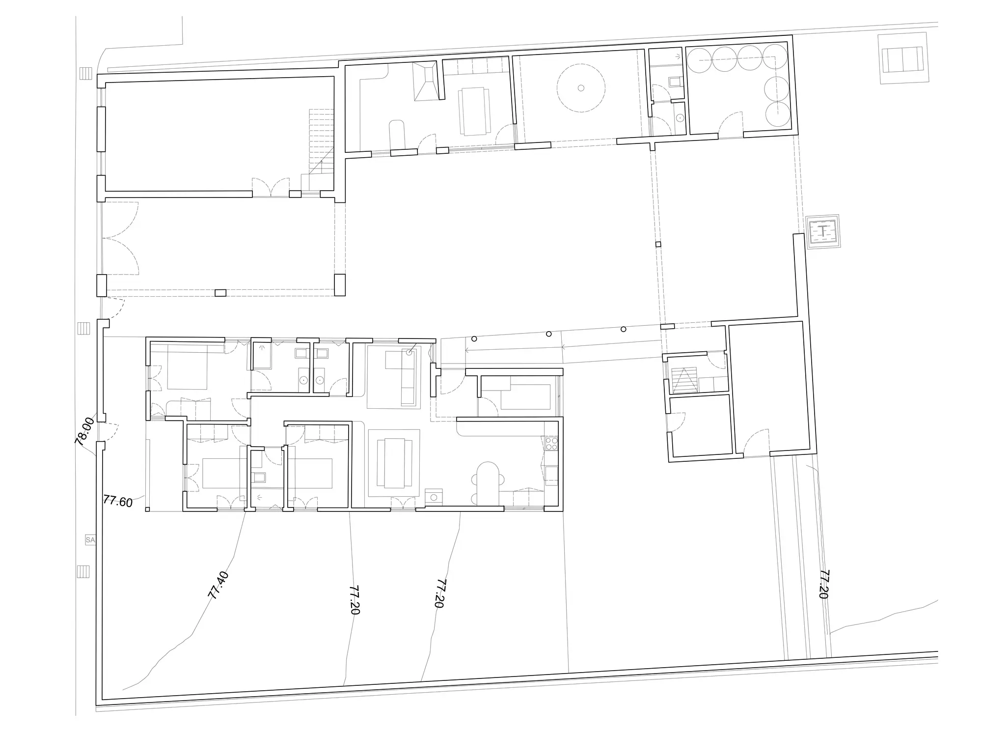
Programa: reabilitação de habitação unifamiliar | T3
Área de implementação: 540m²
Localização: Águeda, Portugal
Cliente: privado
Ano: 2024 – (em processo)
Arquitetura: CURO
Levantamentos: Arq.º Ricardo Martins
Archviz: Joana Marques

Casa da Celeste

Programa: reabilitação de habitação unifamiliar | T3
Área de implementação: 540m²
Localização: Águeda, Portugal
Cliente: privado
Ano: 2024 – (em processo)
Arquitetura: CURO
Levantamentos: Arq.º Ricardo Martins
Archviz: Joana Marques

A Casa da Celeste foi um projeto que surgiu tímido. Apesar do grande potencial do edificado existente e da qualidade da área de intervenção, os clientes não sabiam se era possível tornar o existente numa habitação contemporânea, mas que mantivesse o legado que foi passado entre gerações.

Um casal  jovem e ativo com duas crianças pequenas viram no CURO a oportunidade ideal para criarem a sua casa de sonho. Decidimos que seria importante reorganizar o espaço interior, visto que as áreas estavam desajustadas face às suas necessidades. Por outro lado, a cozinha que mantinha as memórias de infância de um dos elementos do casal, tornou-se, juntamente com a sala, o ponto central do projeto. Criou-se assim uma ligação directa entre cozinha, sala de jantar e sala de estar, de modo a receberem amigos e familiares, continuando a alimentar grandes memórias.

O exterior não foi esquecido. Todas as construções externas, que se encontravam num estado de conservação precário, foram transformadas em áreas de apoio à habitação. No fundo, apresentam-se como a extensão do programa. Decidiu-se trazer mais área verde e jardim, criando um pequeno espaço para as crianças brincarem. A Casa da Celeste é uma contadora de histórias viva.